
मेटल सुरक्षा कुंपण Liweiyuan द्वारे उत्पादित केले जातात, एक व्यावसायिक चीनी स्टील संरचना निर्माता. फॅक्टरी थेट विक्री हमी गुणवत्ता हमी. ते मोठ्या प्रमाणावर भिंती, कुंपण आणि संलग्नकांसाठी सुरक्षा उपकरणे म्हणून वापरले जातात. आम्ही तुमच्या चौकशीचे स्वागत करतो!
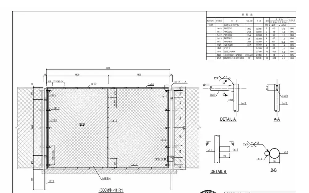
Liweiyuan च्या मेटल सुरक्षा कुंपणांच्या मुख्य संरचनात्मक घटकांमध्ये फ्रेम, अनुदैर्ध्य बीम, कनेक्टर आणि समर्थन पोस्ट समाविष्ट आहेत. फ्रेम प्रामुख्याने विविध धातूंच्या सामग्रीपासून बनविली जाते आणि वैयक्तिक डिझाइनच्या गरजा पूर्ण करण्यासाठी विविध आकारांमध्ये येते. फ्रेम सामग्रीमध्ये प्रामुख्याने गॅल्वनाइज्ड स्टील शीट, गॅल्वनाइज्ड गोल पाईप, गॅल्वनाइज्ड स्क्वेअर पाईप आणि चेन लिंक फेंस यांचा समावेश होतो. ही सामग्री त्यांच्या टिकाऊपणा आणि गंज प्रतिकारशक्तीसाठी निवडली जाते. रेखांशाचा बीम कुंपण फ्रेम दरम्यान निश्चित केले जातात, त्यांची ताकद आणि कणखरता वाढवतात, त्यांना अधिक स्थिर आणि विश्वासार्ह बनवतात.
कनेक्टर हे मुख्य घटक आहेत जे कुंपणाला समर्थन पोस्टशी जोडतात. आम्ही गॅल्वनाइज्ड स्टील शीट, गॅल्वनाइज्ड गोल स्टील आणि गॅल्वनाइज्ड पाईप्स वापरतो. ही सामग्री उत्कृष्ट वारा आणि भूकंप प्रतिकार देते, वापरादरम्यान सैल होण्यापासून प्रतिबंधित करते आणि कुंपणाची सुरक्षा आणि स्थिरता सुनिश्चित करते. सपोर्ट पोस्ट हे कुंपणाचे प्राथमिक आधार घटक आहेत. आम्ही स्थान, गरजा आणि वातावरण यावर अवलंबून विविध समर्थन पोस्ट वापरू शकतो. तथापि, या पोस्टसाठी वापरल्या जाणाऱ्या सामग्रीमध्ये उच्च स्थिरता, वारा आणि भूकंप प्रतिरोधकता आणि वापरादरम्यान सुरक्षितता सुनिश्चित करण्यासाठी टिकाऊपणा असणे आवश्यक आहे.


आमचे धातूचे सुरक्षा कुंपण काढता येण्याजोगे आणि पुन्हा वापरण्यायोग्य आहेत. त्यांची उंची, रुंदी आणि कनेक्शन पद्धती ग्राहकांच्या गरजा आणि अनुप्रयोग परिस्थितीनुसार डिझाइन आणि उत्पादित केल्या जाऊ शकतात, सुरक्षितता आणि पर्यावरण मित्रत्व सुनिश्चित करतात.


आमचे धातूचे सुरक्षा कुंपण इतर इमारती आणि रस्त्यांपासून बांधकाम स्थळांना प्रभावीपणे वेगळे करतात, एक वेगळे कार्यक्षेत्र तयार करतात. आवश्यकतेनुसार ते वेगळे केले जाऊ शकतात आणि पुन्हा एकत्र केले जाऊ शकतात.
वर्कशॉप आयसोलेशन नेट्सचा वापर सामान्यतः औद्योगिक कार्यशाळांमध्ये सुरक्षा उपकरणे म्हणून केला जातो, प्रामुख्याने कामाच्या क्षेत्रांचे सीमांकन करण्यासाठी, धोकादायक उपकरणे वेगळे करण्यासाठी आणि कामगारांचे संरक्षण करण्यासाठी.
घरातील कामाच्या क्षेत्रांचे संरक्षण करण्यासाठी आमची उत्पादने इनडोअर वेअरहाऊस कुंपण म्हणून देखील वापरली जाऊ शकतात. गोदामे, लॉजिस्टिक केंद्रे आणि कारखाने यासारख्या विविध स्टोरेज सुविधांमध्ये ते मोठ्या प्रमाणावर वापरले जातात.
लिवेइयुआन मेटल सुरक्षा कुंपणांसाठी सामान्य आकारांचा समावेश आहे: 2 मीटर लांब बाय 1.5 मीटर उंच; 2.5 मीटर लांब बाय 2 मीटर उंच; आणि 3 मीटर लांब बाय 2.5 मीटर उंच. सानुकूल आकार उपलब्ध आहेत. स्टील सामग्रीमध्ये Q235B, Q355B, A36, आणि A572 समाविष्ट आहेत, युरोपियन आणि अमेरिकन मानकांची पूर्तता.
